- Home
- >
- Services
- >
- Electrical Design & Engineering
- >
- Cabling Design
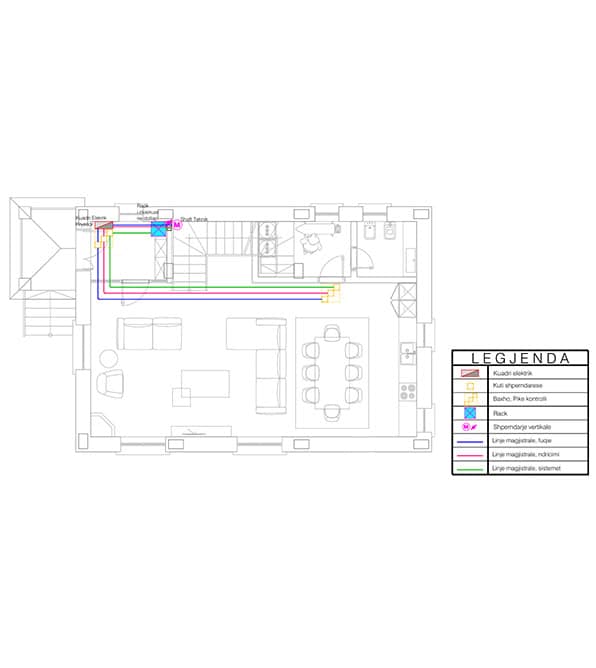
Cabling Design
Efficient cable routing and system planning for safe and reliable installations.
Description
Optimized Cabling Solutions for Power and Low-Voltage Systems
We provide cabling design services covering power, control, fiber-optic, and low-voltage systems for industrial, residential, and commercial projects. Our designs focus on optimized routing, correct sizing, and coordinated layouts to support safe installation and reliable operation.
All cabling designs are developed in compliance with fire safety, EMI/EMC, mechanical protection, and project-specific standards, ensuring performance, durability, and long-term system integrity.
200+
Finished Projects
50+
Happy Clients
15+
Years of Experience
99%
Client Retention Rate
Why Choose us
Why Choose Pema Engineering?
100% Design Data Security
Your design model is completely safe with us.
10+ Years of BIM Expertise
Delivering efficient & quality BIM models for 10+ years.
Adherence To Industry Design Standards
Providing building models that adhere to industry compliance effectively.
Quick Turnaround Time
We accomplish your project through quick turnaround time, and on budget.
Advanced Tech & Software Access
Creating BIM models using all the advanced level technology and software.
Fast & Customized Solution
Fast and customized level of details that contribute to the cost-effective usage of data.
Connect With Us
Discover Our Engineering Expertise
Streamline Building Management
Mitigate Risks & Ensure Compliance
Centralize Property Operations
